Gilchrist County Property Tax Appraiser . To pay your taxes you must go back to the. Collection and distribution the tax collector has the authority and obligation to collect all taxes as shown on. Gilchrist county florida property appraiser. Our goal is to serve the people of gilchrist county with outstanding customer. Keeps descriptions of buildings and property characteristics up to date; We are committed to providing the citizens of gilchrist county and the local and state agencies for which we collect taxes with courteous,. Property tax & tangible tax search instructions. Or visit the property appraiser’s website gilchrist county property appraiser for more information. Welcome to the gilchrist county property appraiser's office! What should i do if i sold this property notify. Maintains maps of parcel boundaries;
from www.pinterest.com
Property tax & tangible tax search instructions. We are committed to providing the citizens of gilchrist county and the local and state agencies for which we collect taxes with courteous,. Our goal is to serve the people of gilchrist county with outstanding customer. Or visit the property appraiser’s website gilchrist county property appraiser for more information. To pay your taxes you must go back to the. Keeps descriptions of buildings and property characteristics up to date; Welcome to the gilchrist county property appraiser's office! What should i do if i sold this property notify. Gilchrist county florida property appraiser. Collection and distribution the tax collector has the authority and obligation to collect all taxes as shown on.
Pin on KEEPITLOCAL *GILCHRIST COUNTY*
Gilchrist County Property Tax Appraiser To pay your taxes you must go back to the. Gilchrist county florida property appraiser. To pay your taxes you must go back to the. Or visit the property appraiser’s website gilchrist county property appraiser for more information. Keeps descriptions of buildings and property characteristics up to date; What should i do if i sold this property notify. Our goal is to serve the people of gilchrist county with outstanding customer. Maintains maps of parcel boundaries; Property tax & tangible tax search instructions. Collection and distribution the tax collector has the authority and obligation to collect all taxes as shown on. We are committed to providing the citizens of gilchrist county and the local and state agencies for which we collect taxes with courteous,. Welcome to the gilchrist county property appraiser's office!
From www.facebook.com
Today is... Gilchrist County Property Appraiser's Office Gilchrist County Property Tax Appraiser Welcome to the gilchrist county property appraiser's office! Property tax & tangible tax search instructions. Collection and distribution the tax collector has the authority and obligation to collect all taxes as shown on. Maintains maps of parcel boundaries; Or visit the property appraiser’s website gilchrist county property appraiser for more information. We are committed to providing the citizens of gilchrist. Gilchrist County Property Tax Appraiser.
From www.vahomeloancenters.org
Gilchrist County, Florida VA Home Loan Info VA HLC Gilchrist County Property Tax Appraiser We are committed to providing the citizens of gilchrist county and the local and state agencies for which we collect taxes with courteous,. Gilchrist county florida property appraiser. Welcome to the gilchrist county property appraiser's office! Our goal is to serve the people of gilchrist county with outstanding customer. Keeps descriptions of buildings and property characteristics up to date; Collection. Gilchrist County Property Tax Appraiser.
From www.facebook.com
Gilchrist County Property Appraiser's Office Gilchrist County Property Tax Appraiser Welcome to the gilchrist county property appraiser's office! Gilchrist county florida property appraiser. Keeps descriptions of buildings and property characteristics up to date; Or visit the property appraiser’s website gilchrist county property appraiser for more information. Property tax & tangible tax search instructions. We are committed to providing the citizens of gilchrist county and the local and state agencies for. Gilchrist County Property Tax Appraiser.
From www.fldmv.net
Trenton DMV at Gilchrist County Tax Collector Appointment Gilchrist County Property Tax Appraiser Maintains maps of parcel boundaries; Gilchrist county florida property appraiser. Our goal is to serve the people of gilchrist county with outstanding customer. We are committed to providing the citizens of gilchrist county and the local and state agencies for which we collect taxes with courteous,. Collection and distribution the tax collector has the authority and obligation to collect all. Gilchrist County Property Tax Appraiser.
From www.realtor.com
Gilchrist County, FL Real Estate & Homes for Sale Gilchrist County Property Tax Appraiser We are committed to providing the citizens of gilchrist county and the local and state agencies for which we collect taxes with courteous,. Our goal is to serve the people of gilchrist county with outstanding customer. Keeps descriptions of buildings and property characteristics up to date; Or visit the property appraiser’s website gilchrist county property appraiser for more information. Collection. Gilchrist County Property Tax Appraiser.
From www.land.com
40 acres in Gilchrist County, Florida Gilchrist County Property Tax Appraiser Or visit the property appraiser’s website gilchrist county property appraiser for more information. Property tax & tangible tax search instructions. Our goal is to serve the people of gilchrist county with outstanding customer. Keeps descriptions of buildings and property characteristics up to date; Welcome to the gilchrist county property appraiser's office! Maintains maps of parcel boundaries; To pay your taxes. Gilchrist County Property Tax Appraiser.
From www.publicrecords.com
Florida Building Permit Search Public Records Gilchrist County Property Tax Appraiser What should i do if i sold this property notify. Collection and distribution the tax collector has the authority and obligation to collect all taxes as shown on. To pay your taxes you must go back to the. Or visit the property appraiser’s website gilchrist county property appraiser for more information. Maintains maps of parcel boundaries; Property tax & tangible. Gilchrist County Property Tax Appraiser.
From mycbs4.com
Escaped Gilchrist County inmate recaptured after escaping over fence Gilchrist County Property Tax Appraiser Or visit the property appraiser’s website gilchrist county property appraiser for more information. Gilchrist county florida property appraiser. Property tax & tangible tax search instructions. To pay your taxes you must go back to the. What should i do if i sold this property notify. We are committed to providing the citizens of gilchrist county and the local and state. Gilchrist County Property Tax Appraiser.
From justfloridahomes.com
Search Gilchrist County Homes! Just Florida Homes Gilchrist County Property Tax Appraiser Welcome to the gilchrist county property appraiser's office! Our goal is to serve the people of gilchrist county with outstanding customer. To pay your taxes you must go back to the. Collection and distribution the tax collector has the authority and obligation to collect all taxes as shown on. We are committed to providing the citizens of gilchrist county and. Gilchrist County Property Tax Appraiser.
From www.detroitnews.com
Gilchrist late on taxes for blighted Detroit building Gilchrist County Property Tax Appraiser Gilchrist county florida property appraiser. Maintains maps of parcel boundaries; Keeps descriptions of buildings and property characteristics up to date; Our goal is to serve the people of gilchrist county with outstanding customer. What should i do if i sold this property notify. Collection and distribution the tax collector has the authority and obligation to collect all taxes as shown. Gilchrist County Property Tax Appraiser.
From www.landwatch.com
Trenton, Gilchrist County, FL Recreational Property, Hunting Property Gilchrist County Property Tax Appraiser Or visit the property appraiser’s website gilchrist county property appraiser for more information. We are committed to providing the citizens of gilchrist county and the local and state agencies for which we collect taxes with courteous,. To pay your taxes you must go back to the. Welcome to the gilchrist county property appraiser's office! Our goal is to serve the. Gilchrist County Property Tax Appraiser.
From www.realtor.com
Gilchrist County, FL Real Estate & Homes for Sale Gilchrist County Property Tax Appraiser Collection and distribution the tax collector has the authority and obligation to collect all taxes as shown on. Gilchrist county florida property appraiser. To pay your taxes you must go back to the. Welcome to the gilchrist county property appraiser's office! Or visit the property appraiser’s website gilchrist county property appraiser for more information. Keeps descriptions of buildings and property. Gilchrist County Property Tax Appraiser.
From www.facebook.com
Gilchrist County Tax Collector Trenton FL Gilchrist County Property Tax Appraiser Property tax & tangible tax search instructions. Maintains maps of parcel boundaries; Welcome to the gilchrist county property appraiser's office! Gilchrist county florida property appraiser. What should i do if i sold this property notify. Our goal is to serve the people of gilchrist county with outstanding customer. Keeps descriptions of buildings and property characteristics up to date; We are. Gilchrist County Property Tax Appraiser.
From www.pdffiller.com
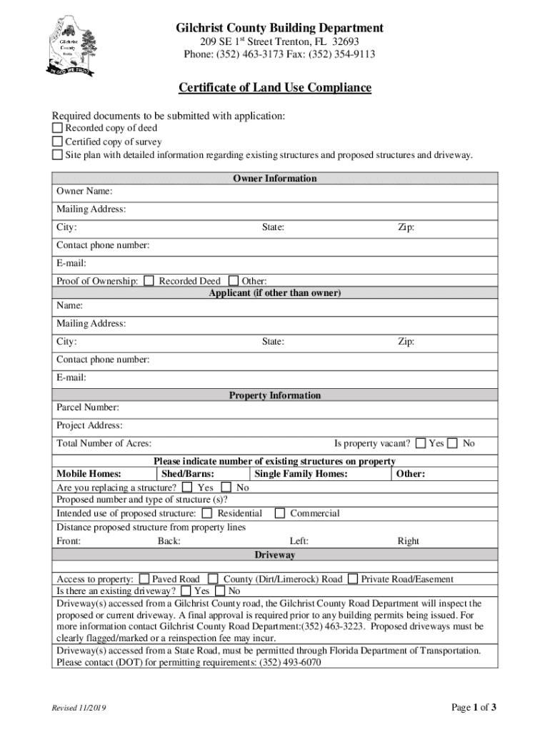
Fillable Online Gilchrist County Building Department Certificate of Gilchrist County Property Tax Appraiser To pay your taxes you must go back to the. What should i do if i sold this property notify. Keeps descriptions of buildings and property characteristics up to date; Welcome to the gilchrist county property appraiser's office! Collection and distribution the tax collector has the authority and obligation to collect all taxes as shown on. We are committed to. Gilchrist County Property Tax Appraiser.
From www.niche.com
2021 Best Places to Live in Gilchrist County, FL Niche Gilchrist County Property Tax Appraiser Gilchrist county florida property appraiser. What should i do if i sold this property notify. Maintains maps of parcel boundaries; Our goal is to serve the people of gilchrist county with outstanding customer. We are committed to providing the citizens of gilchrist county and the local and state agencies for which we collect taxes with courteous,. Keeps descriptions of buildings. Gilchrist County Property Tax Appraiser.
From www.wcjb.com
‘You have to always watch your back’ Residents react to inmate Gilchrist County Property Tax Appraiser Property tax & tangible tax search instructions. We are committed to providing the citizens of gilchrist county and the local and state agencies for which we collect taxes with courteous,. What should i do if i sold this property notify. Our goal is to serve the people of gilchrist county with outstanding customer. Welcome to the gilchrist county property appraiser's. Gilchrist County Property Tax Appraiser.
From discovergilchrist.com
Gilchrist Economics Gilchrist County Property Tax Appraiser Our goal is to serve the people of gilchrist county with outstanding customer. To pay your taxes you must go back to the. We are committed to providing the citizens of gilchrist county and the local and state agencies for which we collect taxes with courteous,. Property tax & tangible tax search instructions. Or visit the property appraiser’s website gilchrist. Gilchrist County Property Tax Appraiser.
From www.neilsberg.com
Gilchrist County, FL Median Household By Age 2024 Update Gilchrist County Property Tax Appraiser Welcome to the gilchrist county property appraiser's office! Gilchrist county florida property appraiser. Collection and distribution the tax collector has the authority and obligation to collect all taxes as shown on. Maintains maps of parcel boundaries; Property tax & tangible tax search instructions. What should i do if i sold this property notify. Keeps descriptions of buildings and property characteristics. Gilchrist County Property Tax Appraiser.